Turnavean Road, St. Austell £365,000
Please enter your starting address in the form input below.
Please refresh the page if trying an alernate address.
Request A Viewing
- Individually Designed Detached Bungalow
- Striking Vaulted Ceiling and Gallery Landing
- 3 Bedrooms
- Kitchen
- Utility Room
- Cloakroom
- Lounge
- Dining Room
- Exceptional Panoramic Views
- Large Single Garage
- Excellent Potential to Personalise
- Gardens
- Gas Central Heating
- NO IONWARD CHAIN
- VIEWING HIGHLY RECOMMENDED
A Distinctive Home with Inspiring Views & Architectural Flair For those searching for something truly individual, this uniquely designed split-level bungalow offers a rare blend of character, tranquillity and breathtaking outlooks. From its vaulted reception room ceiling to its panoramic views stretching across countryside, woodland and the townscape beyond, every angle of this home feels light, uplifting and connected to its surroundings. The three bedrooms offer comfortable proportions, while the elevated rear garden provides a private sanctuary with sweeping vistas—perfect for enjoying the rhythm of the seasons. Offered with no onward chain, this detached property with a garage presents an exceptional opportunity, a haven for those seeking individuality and inspiration.
St. Austell PL25 5NX
Brochure
For full details please see the attached brochure
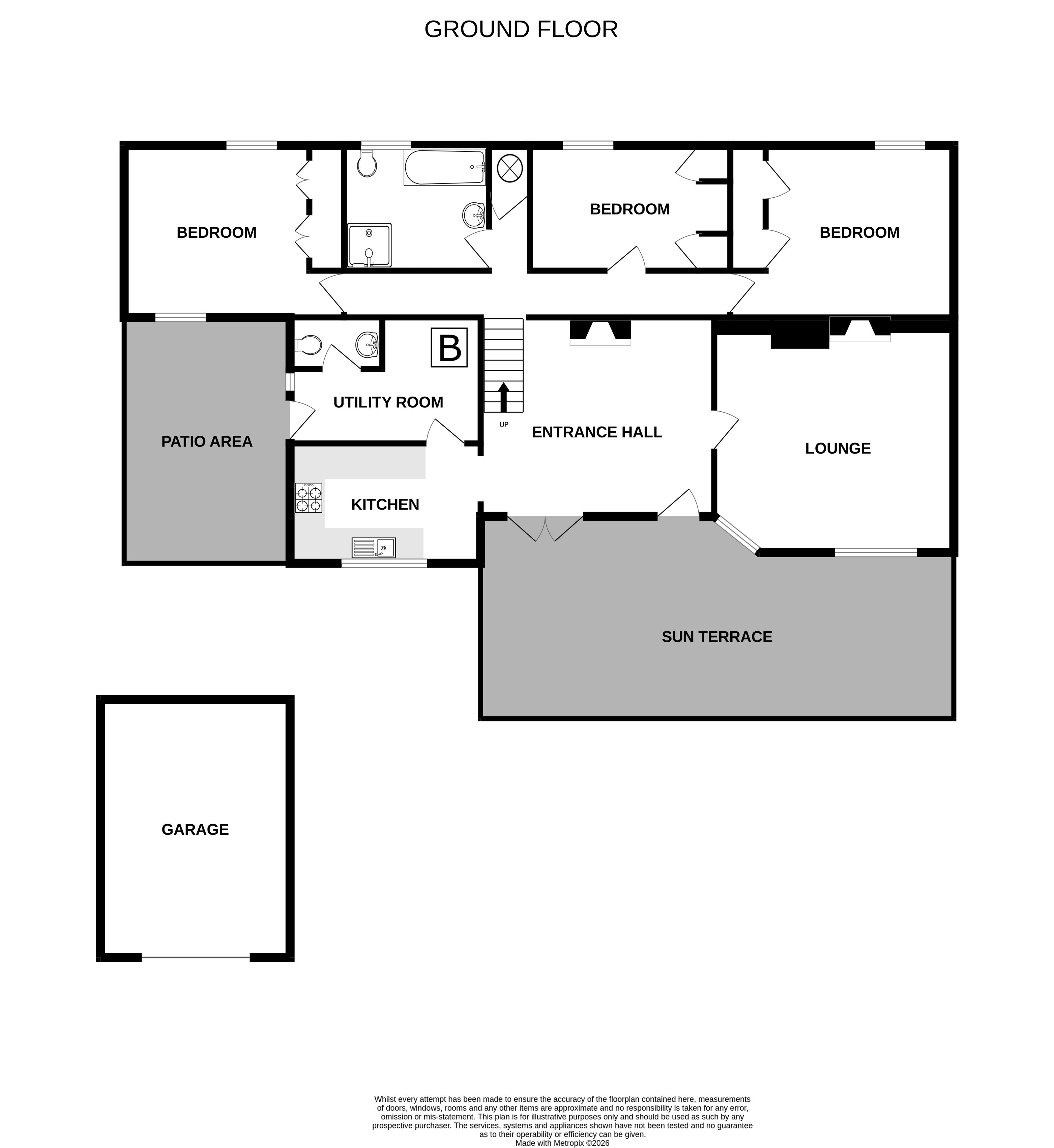
Accommodation Comprises (all sizes approximate)
Reception/Dining Room
15' 1'' x 13' 5'' (4.6m x 4.1m)
Lounge
15' 9'' x 15' 5'' (4.8m x 4.7m)
Kitchen
11' 10'' x 7' 10'' (3.6m x 2.4m)
Utility and Cloakroom
11' 10'' x 7' 3'' (3.6m x 2.2m)
Upper Level
Open gallery landing with white panel doors to 3 bedrooms, bathroom and airing cupboard with shelving and housing the hot water tank. Access to 2 loft areas. Central heating radiator.
Bedroom
14' 1'' x 11' 2'' (4.3m x 3.4m) max into door recess
Bathroom
8' 10'' x 7' 10'' (2.7m x 2.4m)
Bedroom
11' 10'' x 11' 2'' (3.6m x 3.4m) max into door recess
Bedroom
13' 1'' x 8' 2'' (4.0m x 2.5m) max
Exterior
The property is in an elevated position with the entrance door approached via the driveway or steps. To the front of the property there is an established selection of shrubs. A gate gives access to a patio with side garden, a seating area to the front and a larger private garden area to the side, comprising of an additional patio seating area and steps to a raised lawn with tree and shrub borders and offering impressive views. A perfect spot to watch the sun set!
Garage and Driveway Parking
16' 1'' x 12' 10'' (4.9m x 3.9m)
Additional Information
EPC ‘D’ Council Tax Band ‘D’ Services – Mains Electric, Gas & Drainage What 3 words - ///fells.shortage.digested Property Age – 1990s Tenure – Freehold Probate – Granted
Floorplans
Please note that floorplans are provided to give an overall impression of the accommodation offered by the property. They are not to be relied upon as true, scaled and precise representation.
Viewing
Strictly by appointment with the managing agent Jefferys. If you would like to arrange an appointment to view or require any further information, please contact the office on 01726 73483.
St. Austell PL25 5NX
Click to enlarge
| Name | Location | Type | Distance |
|---|---|---|---|



