Furze Park Polruan, Fowey Auction Guide Price £120,000
Please enter your starting address in the form input below.
Please refresh the page if trying an alernate address.
Request A Viewing
- 3 double bedrooms
- In an elevated position
- Has sea and harbour views
- Front and rear gardens
- Cash buyers only
- uPVC double glazed windows and doors
- Infra red heating to the ground floor
- Communal Parking area
- For Sale by Online Auction 22nd April 2026
A rare opportunity to acquire a three double bedroom house within an elevated position enjoying sea and harbour views. Front and rear gardens with street parking available. The property is constructed with mundic blocks and therefore can only be sold to a cash buyer only.
Fowey PL23 1QE
Description
The property is situated on the eastern bank of the River Fowey just inside the entrance to Fowey harbour. Local facilities include general stores, café, two public houses and a Primary School. The village is connected to Fowey, which has a wider range of shops and businesses catering for most daily needs by a regular passenger ferry service. The immediate area is surrounded by wonderful coastal scenery and countryside, much of this is owned by the National Trust. Beyond the local country lanes, there are good road connections to the motorway which is accessed from the A38/A30 and mainline railway station linking directly into London Paddington. This property enjoys an elevated position with sea views to the rear and harbour/Fowey views to the front. The property comprises a mid-terraced House providing three double bedrooms with pleasant garden areas to the front and rear. The property benefits from uPVC double glazed windows and doors, has modern infra red heating to the ground floor. Furze Park benefits from street parking to the rear. The property is located in a highly sought after area and does have potential for investment opportunities. As the property is constructed of mundic blocks, the property will need to be sold to a cash buyer.
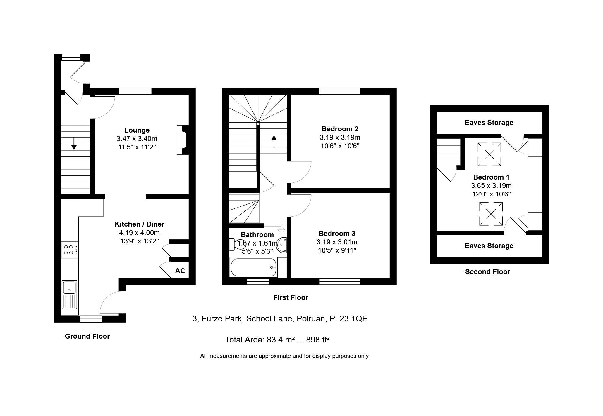
The accommodation comprises with approximate measurements:
Entrance Porch
uPVC panel and double glazed door to the side, uPVC double glazed window to the front.
Entrance Hall
Wooden glazed door leads to the Porch with door leading directly into the Lounge, stairs lead to the first floor, the fuse box and electric meter is in situ.
Lounge
11' 5'' x 11' 2'' (3.47m x 3.40m)
uPVC double glazed window to the front, brick fireplace with woodburning stove and mantel piece. There is an archway opening leading to:
Kitchen/Dining Room
13' 9'' x 8' 11'' (4.19m x 2.71m) plus 6’5” x 4’2” (1.99m x 1.29m)
Two uPVC double glazed windows to the rear enjoying sea glimpses, uPVC panel and double-glazed door to the side, kitchen units comprising wall cupboards and working surfaces with cupboards, drawers and space under, plumbing for washing machine, stainless steel sink unit, built-in electric oven and hob, built-in storage cupboards, airing cupboard with factory insulated hot water cylinder and electric immersion heater.
First Floor
Landing
uPVC double glazed window to the front, stairs leading to the master bedroom with understairs storage cupboard, heated towel rail.
Bathroom/WC
uPVC double glazed window to the rear, suite comprising panelled bath with mixer shower over and glazed screen, pedestal wash hand basin, low level wc, partly tiled walls.
Bedroom 3
9' 11'' x 9' 10'' (3.01m x 3.00m)
uPVC double glazed window to the rear enjoying coastline views.
Bedroom 2
10' 6'' x 10' 6'' (3.19m x 3.19m)
uPVC double glazed window to the front enjoying pleasant views over Fowey and the harbour.
The attic has been converted into a bedroom in recent years and provides the master bedroom.
Master Bedroom
14' 11'' x 12' 0'' (4.54m x 3.65m) (maximum)
Velux roof lights to the front and rear both enjoying excellent views, eaves storage cupboards to the front and rear, built in bedroom furniture.
Outside
To the front, there is a lawned garden area with relatively modern garden shed providing excellent storage facilities. The property is approached via a shared pathway. To the rear, there is a further shared pathway with a private garden linking the house to the parking area. Within the private garden area, there is a raised patio/seating area again enjoying sea views. The property also benefits from a coal bunker to the rear with a further outbuilding currently used as a log store.
Services
Mains electricity, water and drainage. Infrared heating to the ground floor. Reasonable Mobile Coverage and Broadband available.
Tenure
The property is being sold Freehold with vacant possession upon completion.
Council Tax
Band 'A'
EPC
Band 'G'
Mining and Radon
The property is in Cornwall, a county known for mining activity, and potentially high levels of Radon gas.
Online Auction
This property is being sold via Online Auction. Please visit the Jefferys.uk.com website and click Auctions. In order to bid you must do the following via the dashboard: - register - join the Watch List - pass an ID Check - enter your details Auction Ends 5pm, Wednesday 22nd April 2026. The successful purchaser will be liable to pay the sum of £3000 (Inc VAT) upon the Auction ending in for form of a 'buyers fee'. By 12PM the next working day, the full 10% deposit must be paid to purchasers solicitor. No deposit monies are required before you bid. Guide price(s) are an indication of the seller's expectation. Reserve price(s) are a figure below which the auctioneer cannot sell the lot at auction. The reserve price is not disclosed and remains confidential between the seller and the auctioneer and is set within the guide range. A legal pack and special conditions are available to download to anyone who has registered. It is the purchaser's responsibility to make all necessary legal and financial enquiries prior to placing any bids. Some Vendors may consider offers prior to the auction. These offers can only be submitted via Jefferys and under auction conditions. The complete legal pack would need to be inspected before an offer would be considered.
Viewing
Strictly by prior appointment with the vendors agents – Jefferys tel: 01579-342400
Fowey PL23 1QE
Click to enlarge
| Name | Location | Type | Distance |
|---|---|---|---|



